projects
visualization
about
contact
projects
visualization
about
contact
Nick Bulatov
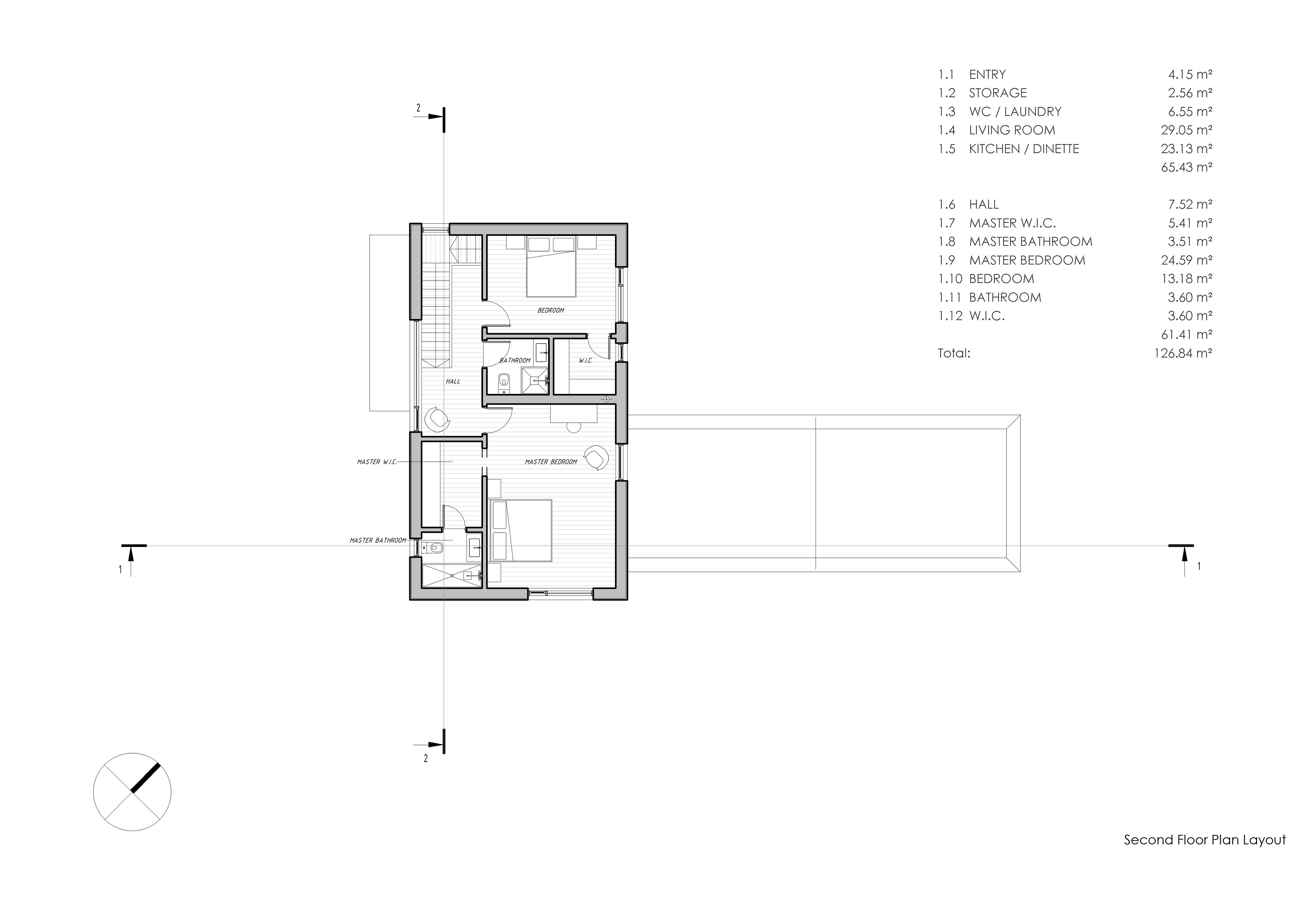
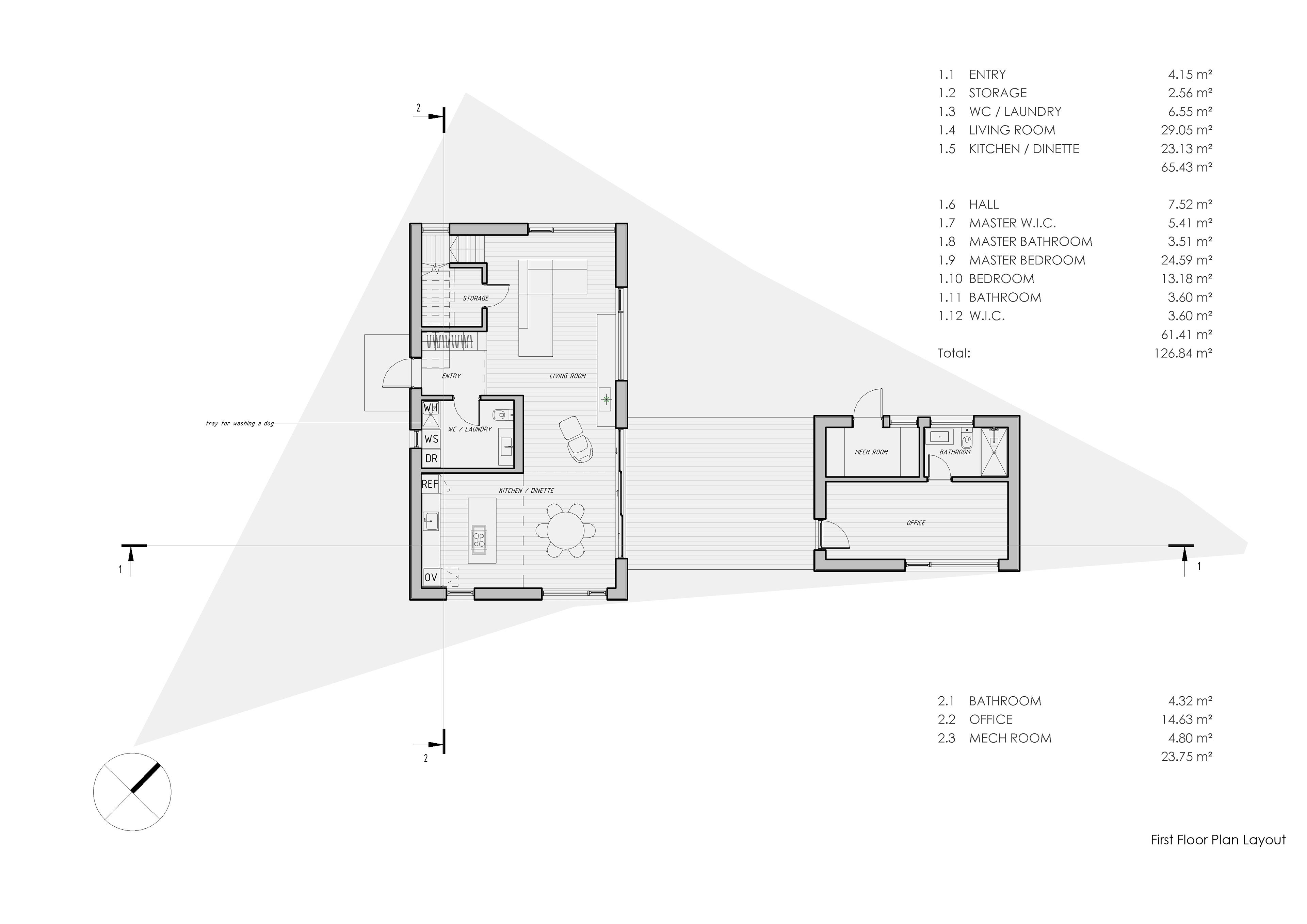
Project name: NOVIY MIZUN
Project year: 2023
Area: 150.6 qm
Location: Ukraine, Ivano-Frankivsk region
Description: The concept involves the production of a house from modules with subsequent assembly on the site
This website uses cookies to provide the best possible functionality.
Ok
No, thanks