Project name: FREED`s HOUSE
Project year: 2020
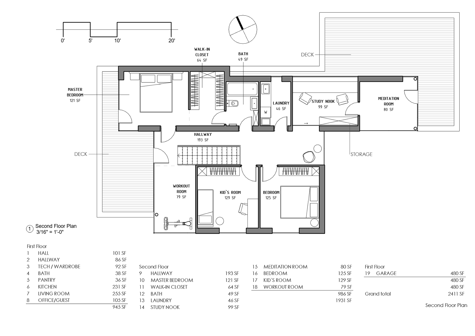
Area: 2411 SF (224 sqm)
Location: Mt. Hope, NY, USA
Description: Compact Family home for the family of 3 with room for guests. The emphasis is on curated space throughout to allow for various types of activities that are able to be separate so that family and guests can enjoy without overlapping when wanted but can come together as well.




https://thegoarchitects.com/freeds-house